関工務所のリフォーム施工事例

HOME | 施工事例 | まちなかの家リノベーション

大規模リノベーションの施工事例

 

まちなかの家リノベーション

リフォーム前
リフォーム後

ご主人のご両親が建てられた家を、今後の新しい生活の基盤に新しく使い勝手がよくなるように、また光が取り込め明るい空間にしたいとのお考えから、リフォームをご決断されました。
当社との出会いは、お客様が水まわりやサッシの建材商品をご検討されていた中、どこかいい工務店がないですかとのご相談があり、当社をご紹介いただいたのがきっかけです。
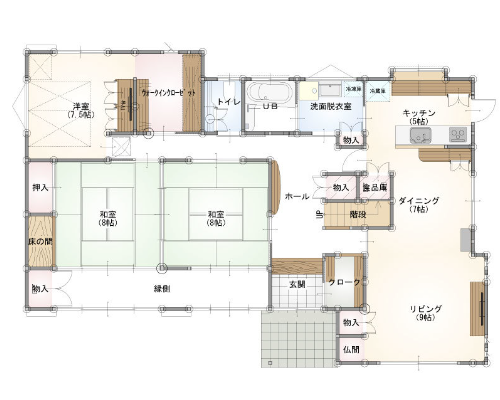
建物の東側に接近して倉庫小屋が建っており、キッチンやダイニングスペースには、ほとんど光がさえぎられていました。まずはこちらを解体して、東からの光を取ることが優先され、プライべート部分を守りつつ、出来る限り開口部を設けました。一段上がっていた居間の畳のスペースを、LDK一体の空間として広く感じられるようにしました。北側の和室と押入・納戸部分も、ご夫婦の寝室として考え、WICとのつながりや動線を考慮してみました。
コスト面も考え、大幅な間取空間の変更は行わず、細かな段差のないバリアフリーはもちろん、現状の位置関係でどこまで広く、明るく感じられるかを考えて出来上がった快適な空間になっています。
 
 
全面リフォーム
在来軸組工法 
木造2階建て 
延べ床面積 174.94
 
屋根:既存まま(和瓦)
外壁:1階部 モルタル下地補修 全面塗装
   2階部 一部モルタル下地 塗装補修
床:ナラ無垢材 15㎜
  クッションフロアー(水まわり)
壁:クロス貼り仕上げ
壁(和室):珪藻土塗り替え
天井:クロス貼り仕上げ
 

リフォーム後


 

 

 

 

 

 

BEFORE リフォーム前


 

 

 

リフォーム後1F

 

リフォーム前1F

リフォーム後2F

 

リフォーム前2F

リフォーム事例一覧